Skriňová regulačná stanica plynu KBM-22

Description

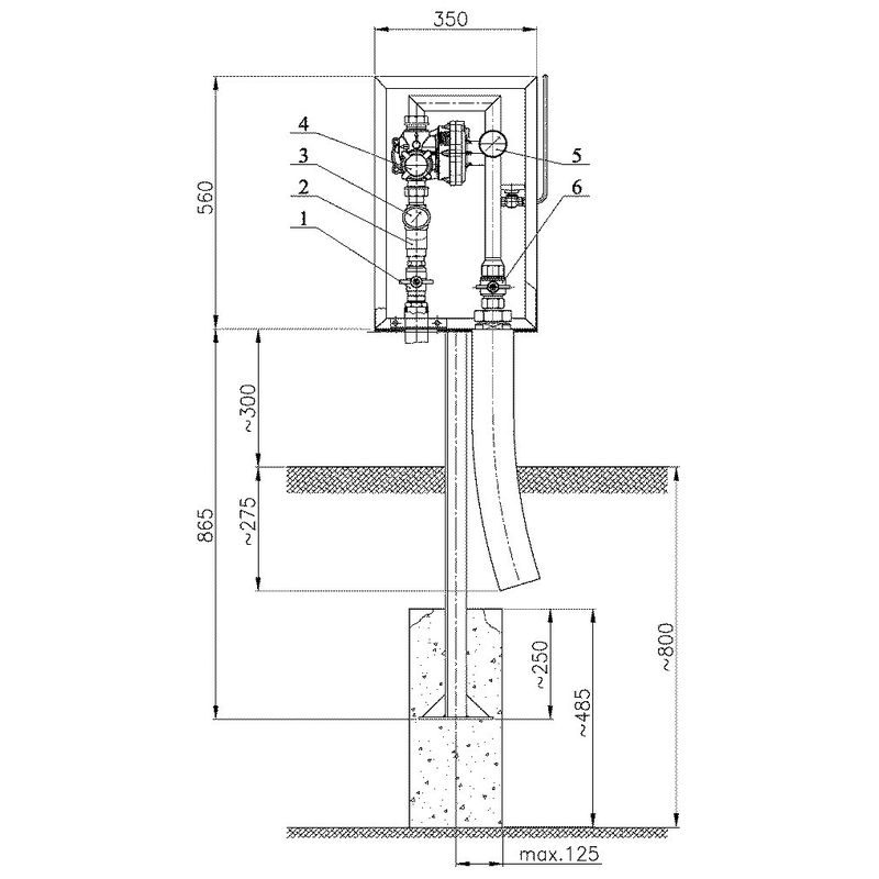
Jednoradové regulačné stanice slúžia na zásobovanie komunálnych,priemyseľných a poľnohospodárskych prevádzok zemným plynom v rozsahu 100-10.000 m3/h. Regulačná stanica spľňa požiadavky technických noriem.Zostava RS je bez obtoku.Z toho dôvodu
v prípade opravy RS,výmeny plynomeru alebo filtračnej vložky musí byť zariadenie odstavené z prevádzky.Toto usporiadanie regulačnej stanice znamená nižšiu vstupnú investíciu.
Plynomer je umiestnený pred regulátorom. Systém je vhodný aj pre obchodné meranie.

Legenda:
* dodáva sa na požiadanie

Technické údaje:

– max. vstupný pretlak:

10 alebo 25 bar

– výstupný pretlak:

0,02….10 bar

– typ regulátorov:

CITYFLOW,typový rad MBL,typový rad MBM

– plynomery:

G 40, G 65, G 100, G 160, G 250, G 400,
G 650, G 1000, G 1600 (turbínový alebo s rot.piestami)

– pripojenie: rozmery:

DN 40….DN 300,príruby

– pripojenie: tlakové triedy:

PN 16, PN 25

– Pripojovacie príruby:

Spodné, alebo bočné usporiadanie, podľa požiadaviek

– Umiestnenie:

Vonkajšie na betónovom základe

– Médium:

Odorizovaný zemný plyn,neagresívne plyny

– Teplota média:

0 °C ….. + 30 °C (+40 °C špeciálne prevedenie)

– Teplota okolia:

-20 °C … + 40 °C (+50 °C špeciálne prevedenie)

– Hlučnosť v základnom prevedení:

max. 75dB (A)

-Hlučnosť s tlmičom hluku a izoláciou

max.55dB (A)

– Skriňa:

Oceľový plech hr.2 mm,povrchová úprava farbením.
Špeciálne prevedenie s tepelnou a protihlukovou izoláciou.

– Skúšky:

Pevnosti a tesnosti, radiografické skúšanie zvarov, výrobcom kontrolované nastavenie regulačných prvkov

– Použité prístroje:

Tlakomery podľa požiadavky noriem

Pripojovacie možnosti: K prepočítavaču množstva: vstupný/výstupný pretlak,kontrola priechodnost filtra,prepočítaná spotreba plynu, teplota plynu,signalizácia polohy bezpečnostných rýchlouzáverov,signalizácia úniku plynu,signalizácia polohy dverí otv./zatv.,iné podľa požiadaviek.

Servis:
Celoštátna servisná sieť v Maďarsku:Ústredie: 8800 Nagykanizsa, Erdész u. 28.
Tel: 30/216-5810
V Slovenskej republike:REVING-GAS,s.r.o.,Jesenského 319,925 21 Sládkovičovo
Tel. 00420 317842140

Reviews

There are no reviews yet.

Be the first to review “Skriňová regulačná stanica plynu KBM-22”