DRS KT-40

Description

Regulačná stanica DRS KT- 40 sa môže použiť pre domácnosti,komunálne a priemyseľné objekty s odberom max. 40 – 50 m3/h. Použiva sa najmä tam,kde je meracie zariadenie umiestnené ďalej od regulačnej stanice a kde je požiadavka aj na estetické prevedenie a umiestnenie.Všetky zariadenia regulačnej stanice spĺňajú požiadavky bezpečnej prevádzky.Armatúry a potrubia sú chránené proti korózii. Vstupný pretlak je prevádzkový pretlak distribučnej siete,výstupný pretlak je prevádzkový pretlak spotrebiča.

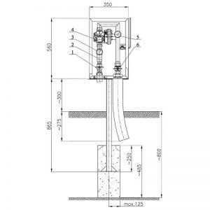
Detaily

1.na vstupe je prechodka PE -oceľ s ochrannou rúrou*, a guľový uzáver. Armatúry označené*, nie sú súčasťou reg.stanice,ale sú potrebné k inštalácii.Dodávame na požiadanie
2.Filter KF DN 25
3.Tlakomer na vstupe
4.Regulátor VF-50
5.Tlakomer na výstupe.
6.Guľový uzáver na výstupe

Technické údaje:
Pripojenie k plynovodu na vstupe prechodkou 32x3P 10 KPE (EN 7908/2 DIN 8074/8075),na výstupe oceľová rúra DN 50 ( EN 10025:98, DIN EN10025 )
Typ regulátora: VF-50 ,podľa vstupného a výstupného pretlaku – treba uviesť pri objednávaní.
Pvst =1,0 – 0,01 MPa, Pvýst= 2 – 20 kPa podľa požiadavky.
Médium: zemný plyn, PB,

Montáž: vonku na obvodovú stenu,Ako ukazuje obrázok,montáž je rýchla a jednoduchá. Výhodou je,že vstupné potrubie je PE,prechodka PE/oceľ je nad úrovňou terénu,v zemi nie sú žiadne spoje,nehrozí nebezpečenstvo úniku plynu. Výstup:prechodka PE/oceľ PE63//5/4“
Poznámka:k reg.stanici sa môžu pripojiť aj oceľové potrubia.
Regulačná stanica je umiestnená v plastovej skrini (možnosť doplniť polovičným plastovým podstavcom).

Reviews

There are no reviews yet.

Be the first to review “DRS KT-40”